# VESTA-114

**KP-35-COMBO**

## **ΣΥΝΔΥΑΣΜΕΝΟ ΠΛΗΚΤΡΟΛΟΓΙΟ ΕΝΣΥΡΜΑΤΟ/ΑΣΥΡΜΑΤΟ**

<figure><img src="https://1750931602-files.gitbook.io/~/files/v0/b/gitbook-x-prod.appspot.com/o/spaces%2FZJzpNocHhYVmD43GZobR%2Fuploads%2FGkNugAw4hwr8kP2AbBse%2Fimage.png?alt=media&#x26;token=2cea7b6b-70ad-40f7-a777-dc29c5094573" alt=""><figcaption></figcaption></figure>

Το KP-35-COMBO είναι ένα ενσύρματο και ασύρματο πληκτρολόγιο σχεδιασμένο για γρήγορο έλεγχο πρόσβασης στον πίνακα ελέγχου του συστήματος. Το πληκτρολόγιο μπορεί να στείλει ενσύρματα και ασύρματα σήματα και να λαμβάνει σήματα από τον Πίνακα Ελέγχου εντός απόστασης καλωδίου, ανάλογα με τη διατομή του καλωδίου και τη συνολική κατανάλωση ισχύος όλων των ενσύρματων συσκευών. Η οθόνη LCD θα εμφανίζει πληροφορίες που στέλνει ο πίνακας ελέγχου του συστήματος.

Το ενσύρματο/ασύρματο πληκτρολόγιο μπορεί είτε να τοποθετηθεί σε επίπεδη επιφάνεια είτε σε τοίχο με βίδες. Διαθέτει επίσης διακόπτη προστασίας κατά της παραβίασης που ενεργοποιείται σε κάθε μη εξουσιοδοτημένη προσπάθεια ανοίγματος του πίσω καλύμματος.

## **Αναγνώριση Μερών**

<figure><img src="https://1750931602-files.gitbook.io/~/files/v0/b/gitbook-x-prod.appspot.com/o/spaces%2FZJzpNocHhYVmD43GZobR%2Fuploads%2FuIOObgAnCWNjzmY6AURp%2Fimage.png?alt=media&#x26;token=43dc5ea1-7b95-40e0-91fb-aff058844338" alt=""><figcaption></figcaption></figure>

1. **Φωτιζόμενη οθόνη LCD**
2. **Πράσινη LED**
   * Η πράσινη λυχνία LED είναι σβηστή σε κατάσταση αναμονής.
   * Η πράσινη λυχνία LED ανάβει όταν πατηθεί οποιοδήποτε πλήκτρο.
3. **Κίτρινη λυχνία LED**
   * Η κίτρινη λυχνία LED θα αναβοσβήνει κάθε 3 δευτερόλεπτα όταν ανιχνευθεί οποιαδήποτε βλάβη και θα σβήνει όταν αποκατασταθούν όλες οι συνθήκες βλάβης. Η συμπεριφορά της LED ελέγχεται από τον Πίνακα Ελέγχου.
4. **Φωτιζόμενα αριθμητικά πλήκτρα**
5. **Φωτιζόμενο πλήκτρο αστερίσκου (＊)**
6. **Φωτιζόμενο πλήκτρο δίεσης (＃)**
7. **Φωτιζόμενο πλήκτρο ΟΚ**
   * Για επιβεβαίωση των πληκτρολογημένων δεδομένων ή της επιλογής.
8. **Φωτιζόμενο πλήκτρο Επαναφοράς (**![](https://1750931602-files.gitbook.io/~/files/v0/b/gitbook-x-prod.appspot.com/o/spaces%2FZJzpNocHhYVmD43GZobR%2Fuploads%2FsNv4LMSDlnMAd6UdmJuv%2F3.jpeg?alt=media)) **Πλήκτρο**
   * Αυτό το πλήκτρο χρησιμοποιείται για τη διαγραφή ενός ψηφίου, την ακύρωση επιλογής, την έξοδο από την τρέχουσα οθόνη και την επιστροφή στην προηγούμενη οθόνη κ.λπ.
9. **Φωτιζόμενη Ενέργεια/** ![](https://1750931602-files.gitbook.io/~/files/v0/b/gitbook-x-prod.appspot.com/o/spaces%2FZJzpNocHhYVmD43GZobR%2Fuploads%2FJTd1H9xjv65lJRhqQZds%2Fimage.png?alt=media\&token=db788ee8-1192-464b-b65c-c212463254fa) **Πλήκτρο**
   * Χρησιμοποιήστε αυτό το πλήκτρο για να μετακινήσετε τον κέρσορα και να μετακινηθείτε προς τα πάνω στην οθόνη.
   * Το πλήκτρο χρησιμοποιείται επίσης για την εισαγωγή στην κατάσταση “Away Armed” (οπλισμένο εκτός).
10. **Φωτιζόμενη Ενέργεια Σπιτιού/** ![](https://1750931602-files.gitbook.io/~/files/v0/b/gitbook-x-prod.appspot.com/o/spaces%2FZJzpNocHhYVmD43GZobR%2Fuploads%2FGXwA6GZrlBmYBS4nRZmw%2Fimage.png?alt=media\&token=c897e3a2-f450-45a9-b8c8-ba702c070cbd) **Πλήκτρο**
    * Χρησιμοποιήστε αυτό το πλήκτρο για να μετακινήσετε τον κέρσορα και να μετακινηθείτε προς τα κάτω στην οθόνη.
    * Το πλήκτρο χρησιμοποιείται επίσης για την εισαγωγή στην κατάσταση “Home Armed” (οπλισμένο σπίτι).
11. **Βομβητής**
12. **Θήκη Μπαταριών**
13. **Τερματικό BUS**

* Συνδέστε τους τέσσερις τερματικούς ακροδέκτες (V, G, A, B) εν σειρά. Για τη καλωδίωση του πληκτρολογίου, αναφερθείτε στο

τερματικό BUS στον Πίνακα Ελέγχου. Έως τέσσερα KP-35-Combo μπορούν να είναι ***Καλωδίωση Πληκτρολογίου*** τμήμα στην επόμενη σελίδα για λεπτομέρειες.

14. **Οπή διαχείρισης καλωδίων**
    * Προτρυπημένη οπή που χρησιμοποιείται για ενίσχυση της ευελιξίας στην διαχείριση καλωδίων.
15. **Διακόπτης βραχυκυκλωτήρα τερματικού αντιστάτη**
    * Όταν το πληκτρολόγιο είναι συνδεδεμένο ως η πιο απομακρυσμένη συσκευή BUS σε γραμμή BUS, ρυθμίστε το jumper αντιστάτη τερματικού του πληκτρολογίου και το Jumper Switch της πρώτης συσκευής BUS σε ON ώστε να λειτουργούν ως τερματικοί αντιστάτες. Η ικανότητα επικοινωνίας της συνδεδεμένης γραμμής BUS θα βελτιωθεί.

<div align="left"><img src="https://1750931602-files.gitbook.io/~/files/v0/b/gitbook-x-prod.appspot.com/o/spaces%2FZJzpNocHhYVmD43GZobR%2Fuploads%2FyOFsVOvBN8kwORKQJ1rC%2F4.jpeg?alt=media" alt=""> <img src="https://1750931602-files.gitbook.io/~/files/v0/b/gitbook-x-prod.appspot.com/o/spaces%2FZJzpNocHhYVmD43GZobR%2Fuploads%2FngRGrJPeZTFniR2bjni8%2F5.jpeg?alt=media" alt=""></div>

**Τζάμπερ Ενεργό**

Εάν ο βραχυκυκλωτήρας είναι ενεργός (ON), η ικανότητα επικοινωνίας θα ενισχυθεί.

**Jumper Off**

<div align="left"><img src="https://1750931602-files.gitbook.io/~/files/v0/b/gitbook-x-prod.appspot.com/o/spaces%2FZJzpNocHhYVmD43GZobR%2Fuploads%2FlLsm8qhVI0SLOhd88cuM%2F7.jpeg?alt=media" alt=""></div>

Εάν ο jumper είναι OFF (ο σύνδεσμος jumper αφαιρείται ή “παρκάρεται” σε ακίδα), η ικανότητα επικοινωνίας είναι στο κανονικό επίπεδο.

16. **Διακόπτης Παρεμβολής (Tamper)**
17. **Οπές στερέωσης x 4**
18. **Βίδα στερέωσης κάτω μέρους x 1**&#x20;

## **Προσοχή**

* Η καλωδίωση του ενσύρματου/ασύρματου πληκτρολογίου πρέπει να εκτελείται μόνο από πιστοποιημένους τεχνικούς με κατάλληλη γνώση και εκπαίδευση σε ηλεκτρικό εξοπλισμό.
* Πριν από την εγκατάσταση ή οποιαδήποτε συντήρηση, βεβαιωθείτε ότι η παροχή ρεύματος του Πίνακα Ελέγχου έχει αποσυνδεθεί.

## **Χαρακτηριστικά**

### ***Τροφοδοσία***

Όταν το KP-35-Combo είναι ενσύρματα συνδεδεμένο στον Πίνακα Ελέγχου, ο Πίνακας Ελέγχου μπορεί να παρέχει τροφοδοσία 13.5V (τυπική) στο KP-35-Combo.

### ***Μπαταρία και Ανίχνευση Χαμηλής Μπαταρίας***

* Μπορούν να τοποθετηθούν δύο μπαταρίες L91 1.5V AA μέσα στο διαμέρισμα μπαταριών ως εφεδρική πηγή ενέργειας σε περίπτωση διακοπής ρεύματος. Πριν εισαγάγετε τις μπαταρίες, βεβαιωθείτε για τη σωστή τοποθέτηση τους για να προστατεύσετε τη συσκευή σας.
* Το ενσύρματο/ασύρματο πληκτρολόγιο μπορεί επίσης να παρακολουθεί τη ζωή της μπαταρίας. Όταν οι μπαταρίες είναι χαμηλές, ένα σήμα χαμηλής μπαταρίας θα αποστέλλεται μαζί με την τακτική μετάδοση σήματος προς τον Πίνακα Ελέγχου για να ειδοποιήσει τους χρήστες για αντικατάσταση της μπαταρίας.

{% hint style="warning" %}
Σημείωση:

Χρησιμοποιήστε μόνο τις καθορισμένες μπαταρίες με τη συσκευή. Κατά την αντικατάσταση των μπαταριών, αντικαταστήστε πάντα ολόκληρο το σετ και μην αναμιγνύετε διαφορετικούς τύπους μπαταριών ή καινούργιες με χρησιμοποιημένες για να αποφύγετε βλάβη στη συσκευή.
{% endhint %}

### ***Λειτουργία εξοικονόμησης ενέργειας***

* Όταν είναι αδρανές, το ενσύρματο/ασύρματο πληκτρολόγιο βρίσκεται σε **αναμονή** λειτουργία και δεν καταναλώνει ενέργεια. Θα ενεργοποιηθεί όταν πατηθεί οποιοδήποτε πλήκτρο.
* Μετά την είσοδο στο Μενού Χρήστη, αν κανένα από τα **Οπλισμού** πλήκτρο/**Home Arm** πλήκτρο δεν πατηθεί, το ενσύρματο/ασύρματο πληκτρολόγιο θα επιστρέψει σε **αναμονή** λειτουργία εντός 5 δευτερολέπτων. Εάν ένα ή και τα δύο **Οπλισμού** πλήκτρο/**Home Arm** πλήκτρο πατηθεί/πατηθούν, το ενσύρματο/ασύρματο πληκτρολόγιο θα επιστρέψει σε λειτουργία αναμονής εντός **20** δευτερολέπτων.
* Αφού εμφανιστεί “Enter PIN Code” στην οθόνη LCD, αν δεν πατηθεί κανένα πλήκτρο, το ενσύρματο/ασύρματο πληκτρολόγιο θα επιστρέψει σε **αναμονή** λειτουργία εντός 5 δευτερολέπτων.
* Αφού υποβληθεί το αίτημα αλλαγής λειτουργίας, αν δεν ληφθεί κανένα σήμα από τον Πίνακα Ελέγχου, το πληκτρολόγιο θα επιστρέψει σε **αναμονή** λειτουργία εντός 15 δευτερολέπτων.
* Μετά την ολοκλήρωση μιας εντολής εισαγωγής, το ενσύρματο/ασύρματο πληκτρολόγιο θα επιστρέψει σε **αναμονή** αναμονής.

### ***Καλωδίωση Πληκτρολογίου***

* Για να συνδέσετε το KP-35-COMBO στον Πίνακα Ελέγχου, ανοίξτε το εμπρόσθιο κάλυμμα χρησιμοποιώντας ένα σταυροκατσάβιδο για να ξεβιδώσετε την βίδα στερέωσης του καλύμματος.
* Πριν συνδέσετε τους τερματικούς “V”, “G”, “A”, “B”, αφαιρέστε τις μπαταρίες από το KP-35-COMBO και βεβαιωθείτε ότι η τροφοδοσία του Πίνακα Ελέγχου έχει αποσυνδεθεί.
* Ξεβιδώστε τον τερματικό “V” του KP-35-COMBO και τον τερματικό “VDD” του Πίνακα Ελέγχου. Συνδέστε τον τερματικό “V” με τον τερματικό “VDD” και σφίξτε και τις δύο βίδες τερματικού.
* Ξεβιδώστε τον τερματικό “G” του KP-35-COMBO και τον τερματικό “GND” του Πίνακα Ελέγχου. Συνδέστε τον τερματικό “G” με τον τερματικό “GND” και σφίξτε και τις δύο βίδες τερματικού.
* Ξεβιδώστε τον τερματικό “A” του KP-35-COMBO και τον τερματικό “485A” του Πίνακα Ελέγχου. Συνδέστε τον τερματικό “A” με τον τερματικό “485A” και σφίξτε και τις δύο βίδες τερματικού.
* Ξεβιδώστε τον τερματικό “B” του KP-35-COMBO και τον τερματικό “485B” του Πίνακα Ελέγχου. Συνδέστε τον τερματικό “B” με τον τερματικό “485B” και σφίξτε και τις δύο βίδες τερματικού.
* Ενεργοποιήστε τον Πίνακα Ελέγχου και περιμένετε να εμφανιστεί “KP-35 COMBO” στην οθόνη LCD του ενσύρματου/ασύρματου πληκτρολογίου.

![](https://1750931602-files.gitbook.io/~/files/v0/b/gitbook-x-prod.appspot.com/o/spaces%2FZJzpNocHhYVmD43GZobR%2Fuploads%2F1PxWYvymhpR6j8wKG5JR%2F11.jpeg?alt=media)

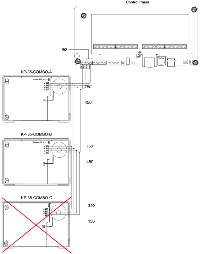
* Ο τερματικός του πληκτρολογίου μπορεί να συνδεθεί ενσύρματα με τον Πίνακα Ελέγχου. Έως τέσσερα KP-35-Combo μπορούν να συνδεθούν εν σειρά. Το μέγιστο μήκος καλωδίου εξαρτάται από τη διατομή του καλωδίου και τη συνολική κατανάλωση ισχύος όλων των ενσύρματων συσκευών, για παράδειγμα: μέγ. 3000ft με καλώδιο 22-AWG για ένα KP-35-COMBO; μέγ. 1500ft με καλώδιο 22-AWG για 2 KP-35-COMBOs; ή μέγ. 1000ft με καλώδιο 22-AWG για 3 KP-35-COMBOs.
* Στην εικόνα παρακάτω, το KP-35-COMBO-**A** και το KP-35-COMBO-**B** είναι σωστά ενσύρματα εν σειρά καθώς η συνολική απόσταση καλωδίου των δύο πληκτρολογίων από τον Πίνακα Ελέγχου είναι εντός 1500ft. Για το KP-35-COMBO-**C** στην εικόνα παρακάτω, είναι **ΚΑΝΕΤΕ** σωστά συνδεδεμένο καθώς είναι μακρύτερα από 1000 πόδια από τον Πίνακα Ελέγχου.
* Για βέλτιστη επικοινωνία των συσκευών της συνδεδεμένης γραμμής BUS, βεβαιωθείτε ότι οι διακόπτες jumper τερματικού αντιστάτη της πρώτης και της πιο απομακρυσμένης BUS συσκευής στη γραμμή BUS είναι ρυθμισμένοι σε ON για να λειτουργήσουν ως τερματικοί αντιστάτες. Βεβαιωθείτε ότι ενεργοποιούνται μόνο αυτοί οι 2 διακόπτες jumper και μην ρυθμίσετε σε ON άλλους διακόπτες jumper για οποιεσδήποτε ενδιάμεσες BUS συσκευές.

Για παράδειγμα, για το KP-35-COMBO-**B** στην εικόνα παρακάτω, είναι η πιο απομακρυσμένη συσκευή στη γραμμή BUS, και το Hybrid Panel είναι η πρώτη συσκευή στη γραμμή BUS. Βεβαιωθείτε να ρυθμίσετε το KP-35-COMBO-**B**και τον διακόπτη J53 του Hybrid Panel σε ON για να λειτουργήσουν ως τερματικοί αντιστάτες.

<div align="left"><figure><img src="https://1750931602-files.gitbook.io/~/files/v0/b/gitbook-x-prod.appspot.com/o/spaces%2FZJzpNocHhYVmD43GZobR%2Fuploads%2FvS8waDtBQANT0QzHpP8U%2Fimage.png?alt=media&#x26;token=9d0c7ac7-086b-48e5-a474-12a70bc01967" alt=""><figcaption></figcaption></figure></div>

### ***Προστασία κατά του άνοιγματος tamper***

* Το ενσύρματο/ασύρματο πληκτρολόγιο προστατεύεται από οποιεσδήποτε μη εξουσιοδοτημένες προσπάθειες ανοίγματος του πίσω καλύμματος με έναν διακόπτη παραβίασης. Όταν το πίσω κάλυμμα ανοίξει, ο διακόπτης παραβίασης θα ενεργοποιηθεί και το πληκτρολόγιο θα μεταδώσει σήμα ανοίγματος παραβίασης στον πίνακα ελέγχου συστήματος.
* Μετά την επανατοποθέτηση του πίσω καλύμματος, το ενσύρματο/ασύρματο πληκτρολόγιο θα μεταδώσει σήμα αποκατάστασης παραβίασης στον Πίνακα Ελέγχου.
* Όταν το ενσύρματο/ασύρματο πληκτρολόγιο έχει τοποθετηθεί σωστά με το πίσω κάλυμμα βιδωμένο στον τοίχο, η βίαιη αφαίρεση του πληκτρολογίου θα αποσπάσει το πίσω κάλυμμα από το κοίλωμα γύρω από τη θέση της βίδας και θα ενεργοποιήσει τον διακόπτη παραβίασης.

### ***Σήμα Επιτήρησης***

* Όταν είναι σε ενσύρματη λειτουργία, το ενσύρματο/ασύρματο πληκτρολόγιο θα μεταδίδει αυτόματα Σήματα Επιτήρησης προς τον Πίνακα Ελέγχου σε διάστημα 20-30 δευτερολέπτων.
* Όταν είναι σε ασύρματη λειτουργία, το ενσύρματο/ασύρματο πληκτρολόγιο θα μεταδίδει αυτόματα Σήματα Επιτήρησης προς τον Πίνακα Ελέγχου σε διάστημα 30-50 λεπτών.
* Εάν ο Πίνακας Ελέγχου δεν έχει λάβει σήμα από το ενσύρματο/ασύρματο πληκτρολόγιο για προκαθορισμένο χρονικό διάστημα, ο Πίνακας Ελέγχου θα θεωρήσει το πληκτρολόγιο εκτός λειτουργίας και θα αντιδράσει σύμφωνα με τις ρυθμίσεις του πίνακα.

## ***Συμμετοχή στο Δίκτυο Συστήματος***

### **Ασύρματη λειτουργία:**

* Για να προσθέσετε το ενσύρματο/ασύρματο πληκτρολόγιο στο δίκτυο του συστήματος, βάλτε πρώτα τον Πίνακα Ελέγχου σε λειτουργία εκμάθησης.
* Πατήστε το πλήκτρο OK μία φορά. Όταν εμφανιστεί στην οθόνη LCD το “Enter PIN Code”, πατήστε και κρατήστε πατημένο το **OK** πλήκτρο για 10 δευτερόλεπτα.
* “Το KP θα επανεκκινηθεί σε 2 δευτερόλεπτα” θα εμφανιστεί στην οθόνη LCD μαζί με ένα μακρύ μπιπ.
* “Σάρωση δικτύου” θα εμφανιστεί στην οθόνη LCD ενώ το ενσύρματο/ασύρματο πληκτρολόγιο στέλνει κωδικό εκμάθησης στον Πίνακα Ελέγχου.
* Όταν το πληκτρολόγιο προστίθεται στον Πίνακα Ελέγχου, “Επιτυχής Εκμάθηση” θα εμφανιστεί στην οθόνη LCD μαζί με 2 μπιπ.

{% hint style="warning" %}
Σημείωση:

Εάν ο Πίνακας Ελέγχου ανταποκριθεί άμεσα στο ενσύρματο/ασύρματο πληκτρολόγιο, η διαδικασία “Σάρωσης Δικτύου” θα παραλειφθεί και θα εμφανιστεί απευθείας στην οθόνη LCD “Επιτυχής Εκμάθηση”.

Εάν το ενσύρματο/ασύρματο πληκτρολόγιο δεν λάβει κανένα σήμα από τον Πίνακα Ελέγχου εντός 20 δευτερολέπτων, η οθόνη LCD θα σβήσει και το πληκτρολόγιο θα επιστρέψει σε λειτουργία αναμονής.
{% endhint %}

## **Ενσύρματη λειτουργία:**

Επιπλέον της ασύρματης λειτουργίας για συμμετοχή στο δίκτυο συστήματος όπως αναφέρεται παραπάνω, ο χρήστης μπορεί να το κάνει μέσω ενσύρματης σύνδεσης.

**Βήμα 1.** Συνδέστε το Πληκτρολόγιο στον Πίνακα μέσω καλωδίωσης.

**Βήμα 2.** Επιλέξτε μια τοποθετημένη περιοχή και μια ελεύθερη ζώνη για να συμμετάσχει στο δίκτυο συστήματος.

**Επιλέξτε** **Περιοχή & Ζώνη**

**Και**  **Εισαγωγή Κωδικών**

* **Περιοχή 1**&#x20;

&#x20;      **Περιοχή 2**

* **Ζώνη 1**&#x20;

&#x20;      **Ζώνη 3**

**Βήμα 3.** Εισάγετε τον Κωδικό PIN της τοποθετημένης περιοχής.

**Εισαγάγετε Κωδικό PIN**

**Βήμα 4.** Εισάγετε τον Κωδικό Εγκαταστάτη. (Προεπιλογή εργοστασίου: 7982)

**Εισαγάγετε Κωδικό -I**

**Βήμα 5.** Το πληκτρολόγιο προστίθεται στην τοποθετημένη περιοχή και στη ζώνη που επιλέξατε.

**Προστέθηκε** **Πληκτρολόγιο** **Για να**

**Περιοχή 1** **Ζώνη 1**

## ***Αναγνώριση***

Η “**Identify**Η λειτουργία ” χρησιμοποιείται για τον εντοπισμό μιας συγκεκριμένης ενσύρματης συσκευής σε όλο το ενσύρματο σύστημα. Αυτή η λειτουργία βοηθά να διακρίνετε ποια συσκευή είναι ποια, ειδικά σε μεγάλη εγκατάσταση όπου περιλαμβάνονται πολλές ενσύρματες συσκευές.

Για να εντοπίσετε το KP-35-Combo στο ενσύρματο σύστημα:

**Βήμα 1.** Στη σελίδα του Πίνακα, κάντε κλικ στο “Identify” κάτω από τη στήλη συσκευής μετά την καταχώριση της συσκευής Πληκτρολογίου.

**Βήμα 2.** Εάν το KP-35-Combo λάβει το σήμα από τον Πίνακα, η ιστοσελίδα θα εμφανίσει μήνυμα επιτυχίας και το λευκό οπίσθιο φωτισμό του ενσύρματου/ασύρματου πληκτρολογίου θα αναβοσβήνει 10 φορές για να δείξει τη θέση του στον χρήστη.

{% hint style="warning" %}
Σημείωση:

Εάν στην ιστοσελίδα εμφανιστεί μήνυμα χρονικού ορίου, αυτό σημαίνει ότι το ενσύρματο/ασύρματο πληκτρολόγιο δεν έλαβε το σήμα από τον Πίνακα.
{% endhint %}

Παρακαλώ ελέγξτε εάν το KP-35-Combo είναι σωστά συνδεδεμένο στον Πίνακα εντός της κατάλληλης απόστασης καλωδίωσης.

### ***Έλεγχος Κατάστασης Περιοχής***

* Το ενσύρματο/ασύρματο πληκτρολόγιο επιτρέπει στον χρήστη να ελέγχει τη λειτουργική κατάσταση κάθε περιοχής. Όταν ο Πίνακας Ελέγχου βρίσκεται σε κατάσταση αναμονής, πατήστε το πλήκτρο OK και η τρέχουσα κατάσταση κάθε περιοχής θα εμφανιστεί στην οθόνη LCD για 3 δευτερόλεπτα.
* Υπάρχουν τρεις διαφορετικές καταστάσεις: A = Away Armed / H = Home Armed / D = System Disarmed.
* Ένα ερωτηματικό “?” θα εμφανιστεί εάν η κατάσταση της περιοχής δεν μπορεί να αναγνωριστεί.
* Παράδειγμα:

<table><thead><tr><th width="26"></th><th width="26">1</th><th width="44">2</th><th width="44">3</th><th width="45">4</th><th width="43">5</th><th width="43">6</th><th width="43">7</th><th width="44">8</th><th width="26"></th></tr></thead><tbody><tr><td></td><td>A</td><td>H</td><td>D</td><td>?</td><td>D</td><td>H</td><td>?</td><td>?</td><td></td></tr></tbody></table>

### ***Αλλαγή Κατάστασης Συστήματος***

Οι χρήστες μπορούν να χρησιμοποιήσουν το πληκτρολόγιο για να αλλάξουν τη λειτουργία του συστήματος μέσω κωδικού PIN.

* **Για να αλλάξετε τη λειτουργία του συστήματος με Κωδικό PIN:**

Μετά την εισαγωγή του κωδικού PIN, πατήστε το **Arm/Home Arm/OK** πλήκτρο για να εισέλθετε **Away Armed/Home Armed/System Disarmed** αναμονής.

* Όταν η λειτουργία του συστήματος αλλάξει σε αφοπλισμένη λειτουργία, η LCD θα δείξει “Area No. Alarm Memory” και η κίτρινη LED θα αναβοσβήνει κάθε 3 δευτερόλεπτα με 5 μπιπ εάν υπήρξαν συναγερμοί νωρίτερα. Οι χρήστες μπορούν χειροκίνητα να εισέλθουν στο Μενού Χρήστη για να δουν τη μνήμη συναγερμών (ανατρέξτε στην ενότητα Μενού Χρήστη παρακάτω για λεπτομέρειες).
* **Λειτουργία Γρήγορου Οπλισμού:** Οι χρήστες μπορούν να εισέλθουν στο Μενού Ρυθμίσεων για να ενεργοποιήσουν τη Λειτουργία Γρήγορου Οπλισμού (Επιλέξτε **Ρυθμίσεις > Quick Arm > Enable**, και στη συνέχεια πατήστε OK), το οποίο θα επιτρέψει στους χρήστες να αλλάζουν τη λειτουργία πατώντας το πλήκτρο Arm ή το πλήκτρο Home Arm χωρίς να εισάγουν τον κωδικό PIN. Για την αδρανοποίηση του συστήματος, οι χρήστες εξακολουθούν να χρειάζεται να εισάγουν τον κωδικό PIN.
* Μετά την είσοδο στο Μενού Χρήστη με το σύστημα αφοπλισμένο, οι χρήστες μπορούν επίσης να επιλέξουν **Away Arm** ή **Home Arm**, και να πατήσουν OK για να αλλάξουν τη λειτουργία του συστήματος.

## ***Μενού Χρήστη***

* Το πληκτρολόγιο θα επικοινωνήσει με το σύστημα για να ανακτήσει πληροφορίες πριν εισέλθει στο Μενού Χρήστη. Οι ακόλουθες επιλογές θα εμφανιστούν στην οθόνη LCD για επιλογή. Χρησιμοποιήστε ![](https://1750931602-files.gitbook.io/~/files/v0/b/gitbook-x-prod.appspot.com/o/spaces%2FZJzpNocHhYVmD43GZobR%2Fuploads%2FTOMjwOjfWXUAAgPK1jF7%2Fimage.png?alt=media\&token=ae78de22-8cf1-4240-925e-c239abfd6a5c) και ![](https://1750931602-files.gitbook.io/~/files/v0/b/gitbook-x-prod.appspot.com/o/spaces%2FZJzpNocHhYVmD43GZobR%2Fuploads%2Fzl846ROyTjIfZtTmZH8d%2Fimage.png?alt=media\&token=be7c7efb-a6d2-4591-8f09-d3e05e88d2b7) πλήκτρα για να επιλέξετε και πατήστε το **OK** πλήκτρο για να επιβεβαιώσετε την επιλογή σας.
* Για να εισέλθετε στο Μενού Χρήστη, πατήστε και κρατήστε πατημένο “![](https://1750931602-files.gitbook.io/~/files/v0/b/gitbook-x-prod.appspot.com/o/spaces%2FZJzpNocHhYVmD43GZobR%2Fuploads%2Fqv6aEGHHjggmc7xs1Oau%2Fimage.png?alt=media\&token=6076630a-b477-4757-ae78-a0a0adf5c877)” για 2 δευτερόλεπτα σε κατάσταση αδράνειας του πληκτρολογίου όταν το σύστημα της περιοχής όπου βρίσκεται το KP-35-Combo είναι ήδη σε **Λειτουργία Αφοπλισμού**.
* Το πληκτρολόγιο θα εξέλθει αυτόματα από το Μενού Χρήστη μετά από 20 δευτερόλεπτα αδράνειας.

**Away Arm**

**Home Arm**

**Μνήμη Συναγερμού**

**Μνήμη Σφάλματος**

**Αρχείο Καταγραφής**

**Παράκαμψη**

**Ρύθμιση**

* **Away Arm:** Επιλέξτε “Away Arm” και πατήστε το πλήκτρο OK για να αλλάξετε τη λειτουργία του συστήματος σε “Away Armed”.
* **Home Arm:** Επιλέξτε “Home Arm” και πατήστε το πλήκτρο OK για να αλλάξετε τη λειτουργία του συστήματος σε “Home Armed”.
* **Μνήμη Συναγερμού:** Αυτή η επιλογή θα γίνει διαθέσιμη μετά από ενεργοποίηση συναγερμού. Η είσοδος στο Μενού Χρήστη θα κατευθυνθεί αυτόματα στην επιλογή Μνήμης Συναγερμών. Πατήστε **OK** για να επιβεβαιώσετε την επιλογή, και στη συνέχεια χρησιμοποιήστε ![](https://1750931602-files.gitbook.io/~/files/v0/b/gitbook-x-prod.appspot.com/o/spaces%2FZJzpNocHhYVmD43GZobR%2Fuploads%2FBpO9P3fuK5epO5LogihC%2Fimage.png?alt=media\&token=8e5b6e14-8b75-40ab-86ea-137414c829fc) και ![](https://1750931602-files.gitbook.io/~/files/v0/b/gitbook-x-prod.appspot.com/o/spaces%2FZJzpNocHhYVmD43GZobR%2Fuploads%2F70hOPvkrBy88wRJ6ZL8L%2Fimage.png?alt=media\&token=0e890349-a061-48ec-b4c5-2b1083f33d60) πλήκτρα για να δείτε τη μνήμη συναγερμών.
* **Εμφάνιση Βλάβης:** Αυτή η επιλογή θα γίνει διαθέσιμη όταν υπάρχει γεγονός σφάλματος στο σύστημα. Για να δείτε τα γεγονότα σφάλματος, επιλέξτε “Fault Display” και πατήστε OK για να επιβεβαιώσετε την επιλογή. Χρησιμοποιήστε ![](https://1750931602-files.gitbook.io/~/files/v0/b/gitbook-x-prod.appspot.com/o/spaces%2FZJzpNocHhYVmD43GZobR%2Fuploads%2Flonv2XSafCxjUEuCkbhE%2Fimage.png?alt=media\&token=5ae184c1-6b46-4b02-9a2b-2391bb5e8ad6) και ![](https://1750931602-files.gitbook.io/~/files/v0/b/gitbook-x-prod.appspot.com/o/spaces%2FZJzpNocHhYVmD43GZobR%2Fuploads%2FwUcq665npehiVTBHhH3V%2Fimage.png?alt=media\&token=d3da5bbf-d0aa-4270-9bbb-c34eeff79fbd) πλήκτρα για να προβάλετε τα γεγονότα σφάλματος και πατήστε ![](https://1750931602-files.gitbook.io/~/files/v0/b/gitbook-x-prod.appspot.com/o/spaces%2FZJzpNocHhYVmD43GZobR%2Fuploads%2FTSNeXSKox6c9J20JlqDu%2Fimage.png?alt=media\&token=b3503f82-de4a-4415-8e56-3222b7fbaa73) πλήκτρο για να επιστρέψετε στο Μενού Χρήστη.

{% hint style="warning" %}
Σημείωση:

Η κίτρινη LED θα αναβοσβήνει κάθε 3 δευτερόλεπτα όταν ανιχνευθεί οποιαδήποτε βλάβη και θα σβήνει όταν αποκατασταθούν όλες οι βλάβες.

Εάν προσπαθήσετε να οπλίσετε το σύστημα όταν υπάρχει γεγονός βλάβης, ο οπλισμός θα απαγορευτεί και η οθόνη LCD θα μεταβεί στην Εμφάνιση Βλάβης. Εάν θέλετε να οπλίσετε το σύστημα με εξαναγκασμό, εκτελέστε ξανά την ενέργεια οπλισμού εντός 30 δευτερολέπτων. Το σύστημα θα αγνοήσει το γεγονός βλάβης και θα εισέλθει στην επιλεγμένη λειτουργία οπλισμού.

**Αρχείο Καταγραφής**: Επιλέξτε “Log” και πατήστε OK για να δείτε το αρχείο καταγραφής του συστήματος. Χρησιμοποιήστε ![](https://1750931602-files.gitbook.io/~/files/v0/b/gitbook-x-prod.appspot.com/o/spaces%2FZJzpNocHhYVmD43GZobR%2Fuploads%2FYE04Fnil2PwYOBM16xFq%2Fimage.png?alt=media\&token=ccb6cfc2-1942-4421-a2e7-a0ce6e645001) και ![](https://1750931602-files.gitbook.io/~/files/v0/b/gitbook-x-prod.appspot.com/o/spaces%2FZJzpNocHhYVmD43GZobR%2Fuploads%2FtCqKZQ5Vhj81KA5boVA1%2Fimage.png?alt=media\&token=d056dd49-7470-40b2-a85d-b111e214c146) πλήκτρα για να προβάλετε τα γεγονότα και πατήστε ![](https://1750931602-files.gitbook.io/~/files/v0/b/gitbook-x-prod.appspot.com/o/spaces%2FZJzpNocHhYVmD43GZobR%2Fuploads%2F46VOFVnNKkGmZEVjC8I7%2Fimage.png?alt=media\&token=43665a36-6466-48b7-95c2-34a90636258d) πλήκτρο για να επιστρέψετε στο Μενού Χρήστη.

**Παράκαμψη:** Αυτή η λειτουργία είναι διαθέσιμη μόνο σε ενσύρματη σύνδεση. “Enter M. Code” θα εμφανιστεί στην οθόνη LCD (ο προκαθορισμένος M. Code είναι **1111**). Ο Πίνακας θα αγνοήσει όλα τα σήματα που λαμβάνονται από τη συσκευή που παρακάμπτεται και δεν θα αντιδράσει καθόλου όταν αυτή η συσκευή ενεργοποιηθεί.

**Ρυθμίσεις:** Για ασύρματη σύνδεση, μετά την είσοδο στο Μενού Χρήστη, εισάγετε τον προεπιλεγμένο M. κωδικό “**1111**” για να εισέλθετε στο μενού ρυθμίσεων. Για ενσύρματη σύνδεση, εισάγετε τον προκαθορισμένο I. code “**7982**” για να εισέλθετε στο μενού ρυθμίσεων. Χρησιμοποιήστε ![](https://1750931602-files.gitbook.io/~/files/v0/b/gitbook-x-prod.appspot.com/o/spaces%2FZJzpNocHhYVmD43GZobR%2Fuploads%2FyJgrWuscXxgSGBa8TsOc%2Fimage.png?alt=media\&token=ff4e5371-35ca-4f34-8d73-3fa4607cc0c2) και ![](https://1750931602-files.gitbook.io/~/files/v0/b/gitbook-x-prod.appspot.com/o/spaces%2FZJzpNocHhYVmD43GZobR%2Fuploads%2FCBa8WhuObhNQ9XPgPbEe%2Fimage.png?alt=media\&token=fc2d46e8-1d76-4a21-9fab-d28a74a81eb9) πλήκτρα για να επιλέξετε επιλογές ρύθμισης και πατήστε το πλήκτρο για να επιστρέψετε στο Μενού Χρήστη.
{% endhint %}

**Έλεγχος Ήχου (Beep)**

**Συναγερμός Πανικού**

**Συναγερμός Πυρκαγιάς**

**Ιατρικός Συναγερμός**

**Γρήγορη Ένοπλη**

**Γλώσσα**

**Αλλαγή M. Κωδικού**

* **Γλώσσα:** Επιλέξτε “Γλώσσα” και πατήστε OK για να εισέλθετε στο μενού γλώσσας. Χρησιμοποιήστε ![](https://1750931602-files.gitbook.io/~/files/v0/b/gitbook-x-prod.appspot.com/o/spaces%2FZJzpNocHhYVmD43GZobR%2Fuploads%2FFV4I6OQESAfGC4lpBbau%2Fimage.png?alt=media\&token=6c2c4720-1693-40b0-a1c2-22d9698e85e6) και ![](https://1750931602-files.gitbook.io/~/files/v0/b/gitbook-x-prod.appspot.com/o/spaces%2FZJzpNocHhYVmD43GZobR%2Fuploads%2Fb9TbrDYnNSOljfyoEx1D%2Fimage.png?alt=media\&token=bc182f7a-2a01-42e4-9a45-8d41d1b90910) πλήκτρα για να επιλέξετε τη γλώσσα για εμφάνιση και πατήστε το πλήκτρο για να επιστρέψετε στο Μενού Χρήστη.

**Αγγλικά**

**Ισπανικά**

**Πορτογαλικά**

**Γαλλικά**

**Γερμανικά**

**Ιταλικά**

**Ολλανδικά**

### **Αλλαγή M. Code:**&#x20;

Αυτή η λειτουργία είναι διαθέσιμη μόνο υπό ασύρματη σύνδεση. Ο προεπιλεγμένος M. κωδικός είναι 1111. Οι χρήστες μπορούν να τον αλλάξουν χειροκίνητα, και μόνο όταν εισαχθεί ο σωστός M. κωδικός μπορεί ο χρήστης να εισέλθει στο μενού ρυθμίσεων.

### ***Αποτέλεσμα αλλαγής λειτουργίας***

* **Away Armed:** Όταν το σύστημα αλλάζει σε λειτουργία “Away Armed”, “Area No. Away Armed” θα εμφανιστεί στην οθόνη LCD μαζί με ένα μακρύ μπιπ που υποδεικνύει επιτυχή λειτουργία.
* **Home Armed:** Όταν το σύστημα αλλάζει σε λειτουργία “Home Armed”, “Area No. Home Armed” θα εμφανιστεί στην οθόνη LCD μαζί με 3 μπιπ που υποδεικνύουν επιτυχή λειτουργία.
* **System Disarmed:** Όταν το σύστημα αλλάζει σε λειτουργία “System Disarmed”, “Area No. System Disarmed” θα εμφανιστεί στην οθόνη LCD μαζί με 2 μπιπ που υποδεικνύουν επιτυχή λειτουργία.
* **Καθυστέρηση Εισόδου/Εξόδου:** Όταν ο χρονοδιακόπτης καθυστέρησης εισόδου/εξόδου είναι ενεργοποιημένος στον Πίνακα Ελέγχου, και η λειτουργία Ειδοποίησης Εισόδου/Εξόδου είναι ενεργοποιημένη στο ενσύρματο/ασύρματο πληκτρολόγιο, το πληκτρολόγιο θα μετρά αντίστροφα μαζί με το σύστημα όταν ξεκινά ο χρονοδιακόπτης καθυστέρησης εισόδου/εξόδου. “Μετρά αντίστροφα Περιοχή Νο.” θα εμφανιστεί στην οθόνη LCD για 10 δευτερόλεπτα. Η πράσινη LED θα ανάψει επίσης για 10 δευτερόλεπτα συνοδευόμενη από 1 μπιπ κάθε δευτερόλεπτο. Μετά από 10 δευτερόλεπτα, η οθόνη LCD και η πράσινη LED θα σβήσουν, αλλά τα ηχητικά προειδοποίησης θα συνεχιστούν με την αντίστροφη μέτρηση του συστήματος.
* **Σφάλμα λειτουργίας:** “Σφάλμα λειτουργίας” θα εμφανιστεί στην οθόνη LCD μαζί με 2 μπιπ που υποδηλώνουν αποτυχημένη ενέργεια; για παράδειγμα, όταν υποβάλετε αίτημα αλλαγής λειτουργίας από **Away Arm** σε **Home Arm** αναμονής.
* **Εμφάνιση Βλάβης**: Όταν το σύστημα οπλίζεται με βλάβη, “Fault Display” θα εμφανιστεί στην οθόνη LCD μαζί με 3 μπιπ που υποδεικνύουν σφάλμα οπλισμού.
* **Λανθασμένος Κωδικός PIN:** Όταν εισαχθεί λανθασμένος κωδικός, “Incorrect PIN Code” θα εμφανιστεί στην οθόνη LCD μαζί με 4 μπιπ που υποδεικνύουν λανθασμένο κωδικό.

{% hint style="warning" %}
Σημείωση:

Αφού υποβληθεί το αίτημα αλλαγής λειτουργίας, αν δεν ληφθεί σήμα από τον Πίνακα Ελέγχου, το πληκτρολόγιο θα επιστρέψει σε λειτουργία αναμονής εντός 15 δευτερολέπτων.

Εάν υπάρχουν 5 λανθασμένες προσπάθειες Κωδικού PIN εντός 10 λεπτών, το ενσύρματο/ασύρματο πληκτρολόγιο θα κλειδωθεί αυτόματα για 5 λεπτά. Κατά τη διάρκεια αυτής της περιόδου, οποιαδήποτε λειτουργία θα είναι άκυρη. Όταν λήξει ο χρόνος κλειδώματος, το ενσύρματο/ασύρματο πληκτρολόγιο θα εκπέμψει 1 μακρόσυρτο χαρακτηριστικό ήχου.
{% endhint %}

### ***Λειτουργίες διπλού πλήκτρου συναγερμού***

* Η λειτουργία διπλού πλήκτρου είναι απενεργοποιημένη από προεπιλογή. Για να την ενεργοποιήσετε, εισέλθετε στο μενού ρυθμίσεων του ενσύρματου/ασύρματου πληκτρολογίου για να ρυθμίσετε τα ερεθίσματα συναγερμού (Επιλέξτε **Ρυθμίσεις > Panic Alarm/Fire Alarm/Medical Alarm > Enable**, και στη συνέχεια πατήστε OK).
* Συναγερμός Πανικού: Πατήστε “1 + 3” για να ενεργοποιήσετε Συναγερμό Πανικού.
* Συναγερμός Πυρκαγιάς: Πατήστε “4 + 6” για να ενεργοποιήσετε Συναγερμό Πυρκαγιάς.
* Ιατρικός Συναγερμός: Πατήστε “7 + 9” για να ενεργοποιήσετε Ιατρικό Συναγερμό.
* Όταν ενεργοποιηθεί συναγερμός, “Alarm! Alarm!” θα εμφανιστεί στην οθόνη LCD και η πράσινη LED θα ανάψει για 10 δευτερόλεπτα.

### ***Έλεγχος μπιπ:***

Αυτή η λειτουργία σας επιτρέπει να ρυθμίσετε τις ηχητικές προειδοποιήσεις του πληκτρολογίου.

* **Μπιπ Εισόδου/Εξόδου:** Η λειτουργία είναι απενεργοποιημένη από προεπιλογή. Για να την ενεργοποιήσετε, επιλέξτε **Ρυθμίσεις > Beep Control > Entry/Exit Beep > Enable** στο Μενού Χρήστη, και πατήστε OK για να επιβεβαιώσετε τη ρύθμιση. Η διάρκεια του Μπιπ Εισόδου/Εξόδου διαρκεί το πολύ 4 λεπτά.
* **Μπιπ Συναγερμού:** Η λειτουργία είναι απενεργοποιημένη από προεπιλογή. Για να την ενεργοποιήσετε, επιλέξτε **Ρυθμίσεις > Beep Control > Alarm Beep > Enable** στο Μενού Χρήστη, και πατήστε OK για να επιβεβαιώσετε τη ρύθμιση. Η διάρκεια του Μπιπ Συναγερμού διαρκεί το πολύ 15 λεπτά.

## ***Καταστάσεις Σφαλμάτων***

*Όταν το ενσύρματο/ασύρματο πληκτρολόγιο βρίσκεται σε **ΚΑΝΟΝΙΚΗ ΛΕΙΤΟΥΡΓΙΑ,***

* Εάν ο Πίνακας Ελέγχου είναι σε λειτουργία Away Armed, ΔΕΝ μπορείτε να ενεργοποιήσετε τη λειτουργία Home Armed μέσω του ενσύρματου/ασύρματου πληκτρολογίου. Εάν το επιχειρήσετε, το πληκτρολόγιο θα εκπέμψει 2 μπιπ υποδεικνύοντας ότι ο Πίνακας Ελέγχου είναι σε λειτουργία Away Armed.
* Όταν ανιχνευθεί οποιαδήποτε βλάβη, η κίτρινη LED θα αναβοσβήνει κάθε 3 δευτερόλεπτα. Η συμπεριφορά της κίτρινης LED καθορίζεται από τον Πίνακα Ελέγχου.
* Εάν υπάρχουν 5 λανθασμένες προσπάθειες κωδικού PIN εντός 10 λεπτών, το ενσύρματο/ασύρματο πληκτρολόγιο θα κλειδωθεί αυτόματα για 5 λεπτά. Κατά τη διάρκεια αυτής της περιόδου, οποιαδήποτε ενέργεια θα είναι άκυρη. Όταν λήξει ο χρόνος κλειδώματος, το ενσύρματο/ασύρματο πληκτρολόγιο θα εκπέμψει 1 μακρύ μπιπ.

## ***Αλλαγή μπαταριών***

1. Μεταβείτε στο μενού προγραμματισμού του Πίνακα Ελέγχου για να παράκαμψετε τον συναγερμό παραβίασης KP.
2. Αποσυναρμολογήστε το ενσύρματο/ασύρματο πληκτρολόγιο.
3. Αφαιρέστε τις δύο χρησιμοποιημένες μπαταρίες και πατήστε τον διακόπτη παραβίασης για περισσότερα από 3 δευτερόλεπτα για πλήρη εκφόρτιση πριν εισάγετε νέες μπαταρίες. Μην αναμειγνύετε καινούργιες με χρησιμοποιημένες μπαταρίες.
4. Αφαιρέστε την χρησιμοποιημένη μπαταρία και πιέστε τον διακόπτη παραβίασης για να αποφορτίσετε πριν τοποθετήσετε νέες μπαταρίες.
5. Βιδώστε ξανά το ενσύρματο/ασύρματο πληκτρολόγιο στην επιφάνεια στερέωσης με τις βίδες στερέωσης.
6. Επαναφέρετε τον Πίνακα Ελέγχου στην κανονική λειτουργία.

## ***Επαναφορά του Ενσύρματου/Ασύρματου Πληκτρολογίου στις εργοστασιακές ρυθμίσεις***

Το ενσύρματο/ασύρματο πληκτρολόγιο μπορεί να επαναφερθεί για να διαγραφούν όλα τα δεδομένα που έχουν μάθει και να επιστρέψουν όλες οι ρυθμίσεις στις προεπιλεγμένες τιμές με τα παρακάτω βήματα:

1. Παρακαλώ ακολουθήστε ***Αλλαγή Μπαταρίας*** βήματα για επαναφορά εργοστασιακών ρυθμίσεων.
2. Εντός 10 δευτερολέπτων μετά την εισαγωγή των μπαταριών, εισάγετε “0000”. Όταν το τελευταίο ψηφίο του “0000” γίνει “ ![](https://1750931602-files.gitbook.io/~/files/v0/b/gitbook-x-prod.appspot.com/o/spaces%2FZJzpNocHhYVmD43GZobR%2Fuploads%2FhLGDOH42qH04o6f6NQip%2Fimage.png?alt=media\&token=ba563e98-89a9-4b2f-afaa-5863f6f39da3)” στην οθόνη LCD, πατήστε “#” για να επαναφέρετε το ενσύρματο/ασύρματο πληκτρολόγιο στις προεπιλεγμένες τιμές.
3. “Επαναφορά στις προεπιλεγμένες τιμές” θα εμφανιστεί στην οθόνη LCD μαζί με 3 μπιπ που υποδεικνύουν επιτυχή λειτουργία.
4. Όλα τα δεδομένα που έχουν μάθει θα διαγραφούν.
5. Τα Μπιπ Εισόδου/Εξόδου θα απενεργοποιηθούν.
6. Το Μπιπ Συναγερμού θα απενεργοποιηθεί.
7. Η λειτουργία Διπλού Πλήκτρου για συναγερμό θα απενεργοποιηθεί.

{% hint style="warning" %}
Σημείωση:

Η εργοστασιακή ρύθμιση μπορεί να πραγματοποιηθεί μόνο εντός 10 δευτερολέπτων μετά την εισαγωγή των μπαταριών. Εάν το πληκτρολόγιο δεν ενεργοποιηθεί εντός 10 δευτερολέπτων μετά την εισαγωγή των μπαταριών, αφαιρέστε τις μπαταρίες και δοκιμάστε ξανά.

Κάθε φορά που το πληκτρολόγιο αφαιρείται από τον Πίνακα Ελέγχου, θα πρέπει επίσης να τεθεί στις εργοστασιακές ρυθμίσεις για να διαγραφεί η μνήμη του Πίνακα Ελέγχου.
{% endhint %}

## ***Τοποθέτηση του Ενσύρματου/Ασύρματου Πληκτρολογίου***

Για να τοποθετήσετε το ενσύρματο/ασύρματο πληκτρολόγιο:

1. Αφαιρέστε το μπροστινό κάλυμμα χαλαρώνοντας τη βίδα στερέωσης του καλύμματος χρησιμοποιώντας ένα κατσαβίδι.
2. Χρησιμοποιήστε τις 4 οπές στερέωσης στο πίσω κάλυμμα ως πρότυπο για να σημαδέψετε και να τρυπήσετε οπές στερέωσης.
3. Τρυπήστε 4 οπές και εισάγετε τα βύσματα τοίχου. Βεβαιωθείτε ότι τα βύσματα είναι επίπεδα με την επιφάνεια στερέωσης.
4. Βιδώστε το πίσω κάλυμμα πάνω στα βύσματα τοίχου.
5. Επανατοποθετήστε το μπροστινό κάλυμμα πάνω στο πίσω κάλυμμα. Βιδώστε τη βίδα στερέωσης του καλύμματος.
6. Η εγκατάσταση ολοκληρώθηκε.
